BEFORE AND AFTER
マイナスで、付加価値をプラス
減築という手法で4つの壁をマイナスしました。
マイナスすることで、多くの付加価値を得ることができました。
弊社のコンセプトであるSimple×高性能も実現しました。


-
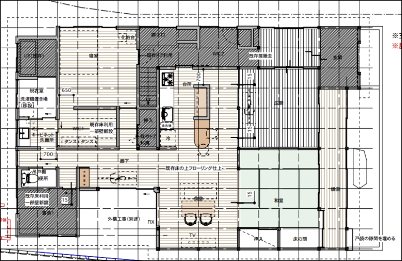
真ん中の大きな空間と
和室の間の壁をマイナス二方向からの採光で明るく、動線もよくなりました。
仕切りがないことで開放的な空間も生まれ、奥のスペースからもお庭の緑を楽しめます。
-
Before

-
After

-
Before

-
After


-
マイナスで大空間が誕生
和室との間に廊下をつくっていた壁をマイナス。
壁をマイナスすることと、キッチンの移設により各方面からの動線の良いLDKとして大空間が生まれました。
-
Before

-
After

-
Before

-
After


-
生活の質を高める空間に
リノベーション前は造作棚があった壁をマイナス。
既存のものをマイナスする作業はかなり想像力が必要ですが、そぎ落とした結果得られた生活の質とパフォーマンスの良さは想像以上でした。
-
Before

-
After


-
視覚的にもスッキリ
こちらの壁は一部マイナス。
そして半分以上が内壁から外壁へと生まれ変わりました。
マイナスしたことによる視覚的な空間の広がりがプラスされました。
-
Before

-
After


-
マイナスで明かりをプラス
こちらは床面積をマイナス。
大きな平屋はなかなか奥まで光が届かず暗い室内になりがちですが、減築により問題を解決しています。
-
Before

-
After

家づくりに関する疑問や不安は
「家づくりセッション®」で解決しましょう。
参加は無料で、必ず当社で建てる
必要はありません。
家づくりのスタートとして、
ぜひ参加してみてください。


